Home Elevator / Portal Frame Household Elevator / Advanced Machine-Room-Less Structure
Home elevator integrates mature lift technologies into artistic space design. Humanistic design can perfectly combine the elevator with home furnishing. Flexible configurations and various intelligent technologies makes household lift perform well in safety, noise, comfort and energy-efficiency.
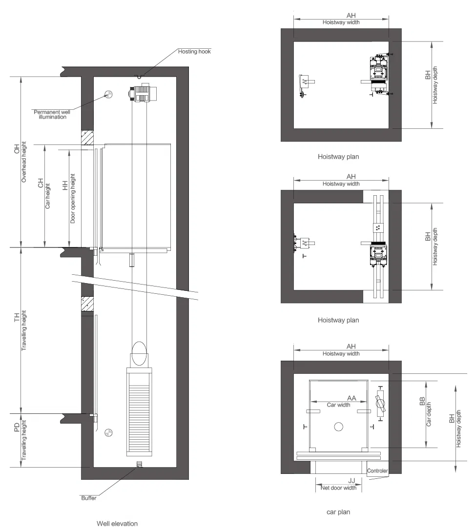
| Loading (kg) | Rated Speed (m/s) | Door Opening Type | Door Width (mm) | Door Height (mm) | Car Size (W×D×H) mm | Hoistway Size (W×D) mm | Top Height (mm) | Pit Depth (mm) | Max Stops |
|---|---|---|---|---|---|---|---|---|---|
| 250 | 0.4 | Double-folded center | 700 | 2000 | 900 × 1000 × 2100 | 1650 × 1450 | 3500 | 1100 | 5 |
| 320 | 0.4 | Double-folded center | 800 | 1100 × 1100 × 2100 | 1850 × 1500 | ||||
| 400 | 0.4 | Double-folded center | 800 | 1100 × 1300 × 2100 | 1850 × 1700 |


1. Safe and reliable: Our passenger elevator puts safety the first place, to ensure each passenger's safe delivery to destination.
2. Space configurability: From the view of space saving, our passenger elevator makes new layout of machine room, improved the space availability.
3. Energy saving and environment friendly: Adopts gearless permanent magnet synchronous machine to save energy and protect environment.
4. High performance: Equipped with stable control system. Intelligent lift dispatching system provides the best solution for customer riding.
5. Free custom-made: Customers can choose their favorite and customized appearance for their own elevators.









Founded in 1992, we are a professional manufacturer with over 30 years of experience specializing in designing and producing Opto-Electro-Mechanical products. We have extensive experience exporting all kinds of elevators and elevator parts to 80 countries worldwide, ensuring high-quality standards and reliable performance.