Fujivista Domestic Lifts Mrl Home Elevator Small Villa Lift with Spacious Panoramic Design and Decorative LED Lighting

Customization: Available
Driving Type: AC Elevator
Capacity: 500-1000kg

Product Description

Basic Specifications

Model NO.
JH-RX3
Capacity
6 - 10 Persons
Speed
1.00 - 2.00m/s
Control Mode
Collective Selective Control
Computer Room
Up
Elevator Door
Center Opening Door
Traction Machine
Gearless Traction Machine
Material
Mirror Etching Panel
Control System
Monarch Vvvf Controller
Buffer
Hydraulic Buffer

Product Description

Passenger Elevator

Designed for high-rise buildings, offering smooth, quiet rides, exceptional energy efficiency, and fully customizable cabins to match your building's aesthetic.

Observation Home Elevator Design 1
Observation home elevator
Observation Home Elevator Design 2
Observation home elevator
Observation Home Elevator Design 3
Observation home elevator

Technical Installation Standards

  • Approved drawings guide installation, meeting international elevator standards.
  • Ensure >50mm step and proper width for machine room to well holes.
  • Step between decor and door sill to prevent water entry post-installation.
  • Precise buffer base creation under expert installer guidance.
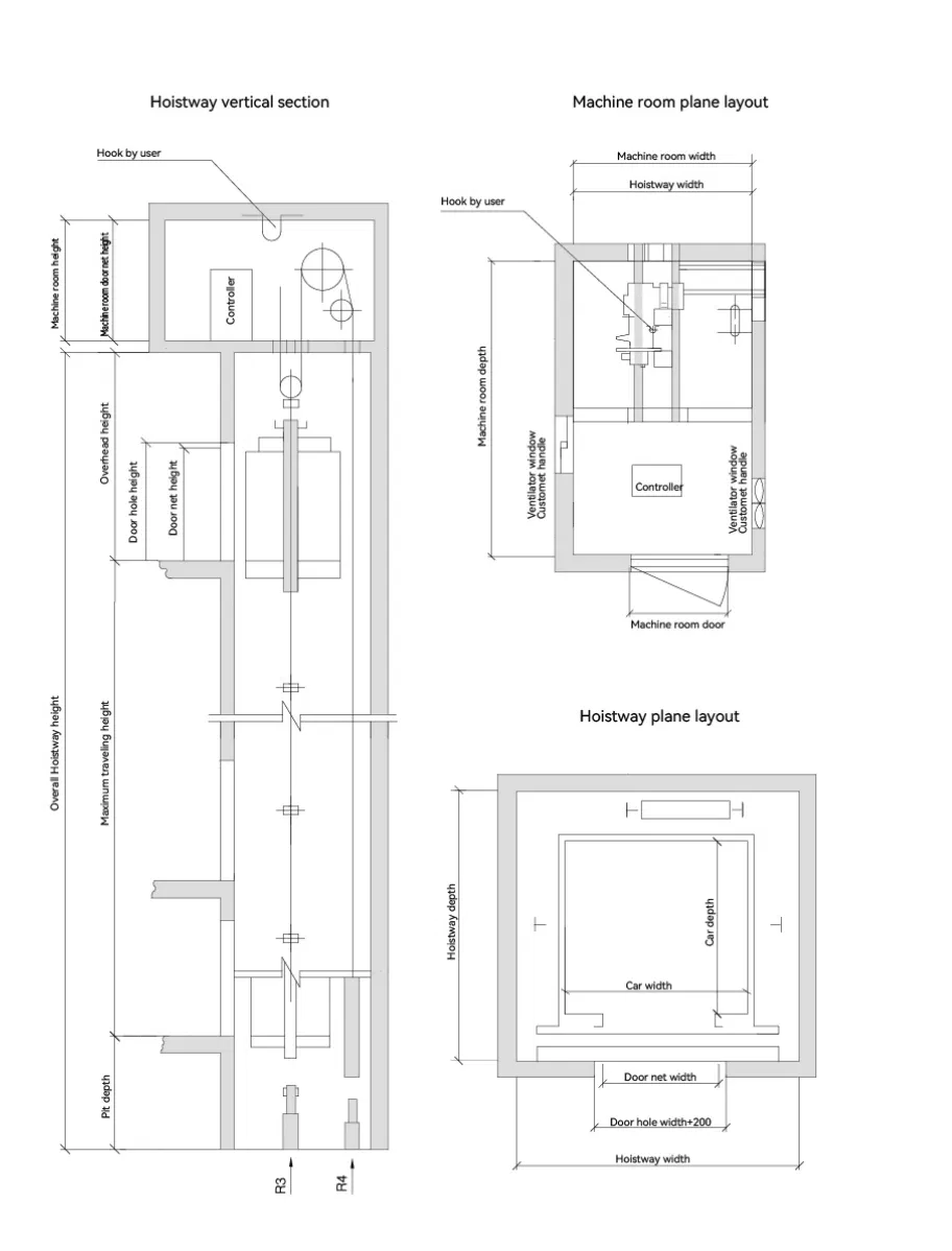
Elevator Sketch and Technical Drawing
Small machine room passenger elevator sketch

Technical Parameters

Load(kg) Speed (m/s) Hoistway Size (mm) Machine Room Size (mm) Car Dimension (mm) Door Opening (mm) Overhead Height Pit Depth
630 1.0 2000×1800 2000x3500 1400×1100 800 4500 1500
1.5 4600 1600
1.75 4700 1700
2.0 4900 2000

*Note: Technical data for reference only. Final manufacturing follows the contract.

Service & Quality

After Sales Service

  • Standard Warranty: 12 months post-assembly.
  • Global Support: 24/7 tech help and spare parts availability.
  • Training: On-site or remote maintenance training.

Why Choose Us?

  • OEM/ODM capabilities with ISO 9001 and CE certification.
  • Competitive pricing & bulk discounts for global partners.
  • Fast shipping & professional turnkey project solutions.
Manufacturing Facility
Quality Control

Frequently Asked Questions

How to handle installation post-purchase?
Detailed manuals and technical drawings are provided. You can hire local teams; our engineers also offer remote guidance to ensure a successful setup.
How is damage risk during sea freight managed?
We use reinforced wooden crates and anti-rust packaging. Furthermore, we provide full insurance coverage under CIF terms to protect your investment.
What is the timeline for a customized elevator?
The process involves 3 days for design proposal after hoist-way details are submitted, followed by production, and shipping approximately 15 days after the final balance payment.
What are the accepted payment terms?
Our standard terms are a 30% deposit to initiate production and the remaining 70% balance due post-production and prior to shipment via T/T or other international methods.
What additional costs should be considered?
Beyond the product cost, our quotes include professional export packaging. Depending on the Incoterms (CIF), freight and insurance are included. Note that local import duties and installation labor are handled by the buyer.
What range of elevators do you offer?
We specialize in a diverse range of solutions including home elevators, freight elevators, sightseeing/panoramic elevators, and hospital elevators.

Related Products